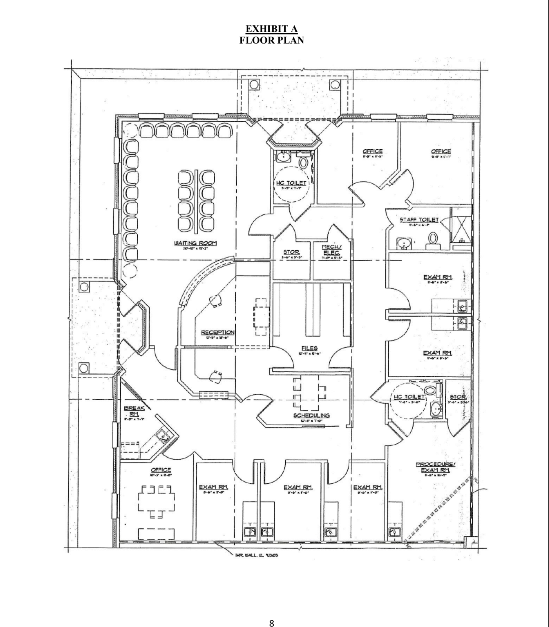
Property Description
1500 Oglethorpe Ave. Unit 3600 offers a strong, stable investment opportunity within the well-established Resource Medical Office Park in Athens, GA. This fully leased medical office suite is occupied by Piedmont Endocrinology, a long-term corporate tenant with two remaining 5 year lease renewal options, providing dependable income and security for investors seeking a low-maintenance, income-producing asset.
Located just off Loop 10 and less than two miles from both Piedmont Athens Regional and St. Mary’s Hospital, the property benefits from exceptional accessibility and proximity to Athens’ key healthcare anchors. The Resource Medical Office Park is home to a mix of reputable medical and professional tenants, creating a strong ecosystem for long-term occupancy and sustained demand.



