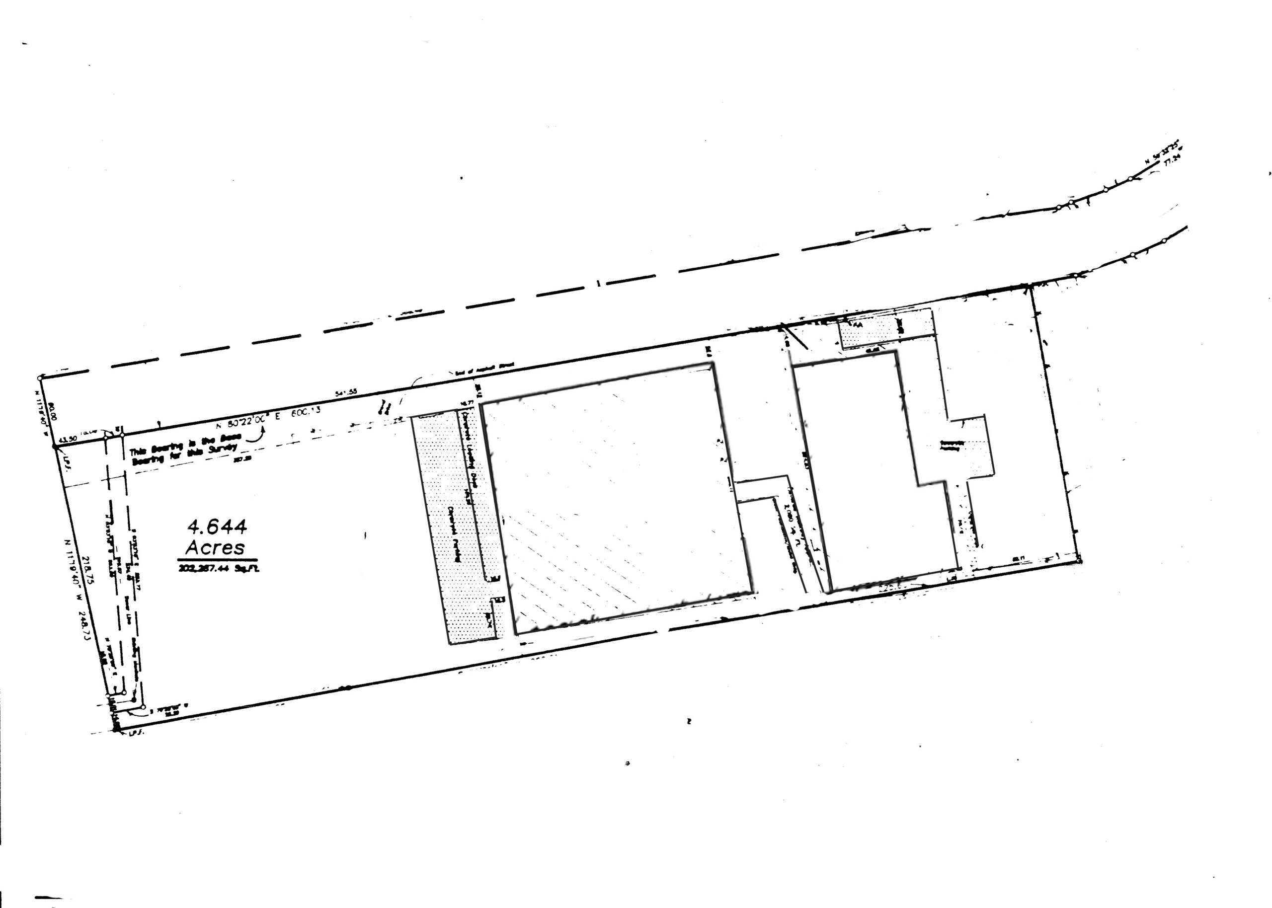
Property Description
105 – 205 Silo Lane offers a total of ±65,000 SF of industrial space on 4.64 acres in Lavonia, Georgia, strategically located along I-85 near the South Carolina border. The two buildings are 23,355 SF and 40,000 SF respectively, with clear heights up to 25’, dock-high and drive-in loading doors, 3-phase/440V power, skylights, and outdoor storage areas. The property is oned Heavy Industrial (H-I) and is fully sprinklered making it ideal for manufacturing, distribution, and logistics uses.
An excellent income-producing opportunity, this property offers flexibility for investors or owner-users. Building 105 is leased to a corporate tenant through 2027, providing $100,000 in base rent per year (plus TICAM), while Building 205 is currently vacant and ready for lease or occupancy.
Lavonia is a growing industrial hub with access to a skilled workforce and proximity to major manufacturing and logistics corridors in Greenville–Spartanburg and Atlanta. This property presents a compelling opportunity for investors or owner-users seeking functional industrial space with strong connectivity, immediate income, and long-term growth potential.
BLDG 105
- ±23,355 SF + )
- .45 acres
- Built 1960
- Zoned Heavy Industrial (H-I)
- Clear height 10’–12″
- 3 drive-in doors
- Leased through 12/2027
BLDG 205
- ±40,000 SF
- 1.2 acres
- Built 1983
- Zoned Heavy Industrial (H-I)
- Clear height 25’
- 3-phase / 440-volt power
- Fully sprinklered
- Reinforced concrete w/steel frame foundation
- 3 dock high doors
- VACANT
